Portfolio

East Jefferson General Hospital – Emergency Department Renovation

Kenner Discovery Arts and Athletic Performance Center

Archbishop Chapelle High School – Joan of Arc Center – Library Renovation

West Jefferson Medical Center - POB Canopy, Concourse, Lobby, and Exterior

Children’s Hospital New Orleans - Emergency Room Metairie

West Jefferson Medical Center – Southwing Patient Tower, NICU, and Nursery

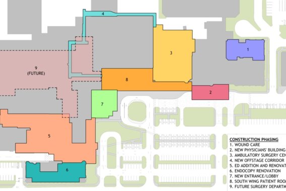
West Jefferson Medical Center – Emergency Department, Endoscopy, Ambulatory Surgical Center, and Wound Care

Children’s Hospital New Orleans - Northshore Outpatient Clinic

University Medical Center - Outpatient Surgical Department

West Jefferson Medical Center - Strategic Masterplan Renovations

Southern University at New Orleans Natural Science Building

Delgado Community College Maritime & Industrial Training Center

East Jefferson Levee District Safehouse & Consolidated Facility

Mary McLeod Bethune Elementary School of Literature and Technology

LA Department of Transportation & Regional Planning Commission Offices

Slidell Memorial Hospital Emergency Department & Heart Center

Delgado Community College Learning Resource Center

Dillard University Professional Schools & Sciences Building

East Jefferson General Hospital Yenni Treatment Center

Xavier University Norman C. Francis Science Complex